Land For Sale in southern river
Sub Properti
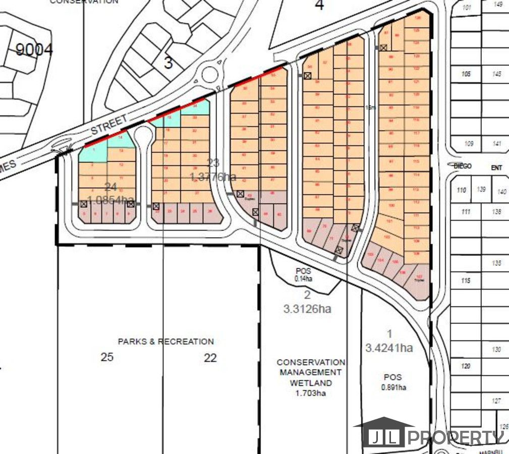
956 Balfour Street, Southern River WA 6110
938 Algerian Way, Southern River WA 6110