thumbnail-14-fortune-avenue-bongaree-qld-4507-0
thumbnail-14-fortune-avenue-bongaree-qld-4507-1
thumbnail-14-fortune-avenue-bongaree-qld-4507-2

1/4 Fortune Avenue Bongaree QLD 4507

offices For Lease Contact Seller
Specification

Surface Area 770 M2
Building Area 770 M2

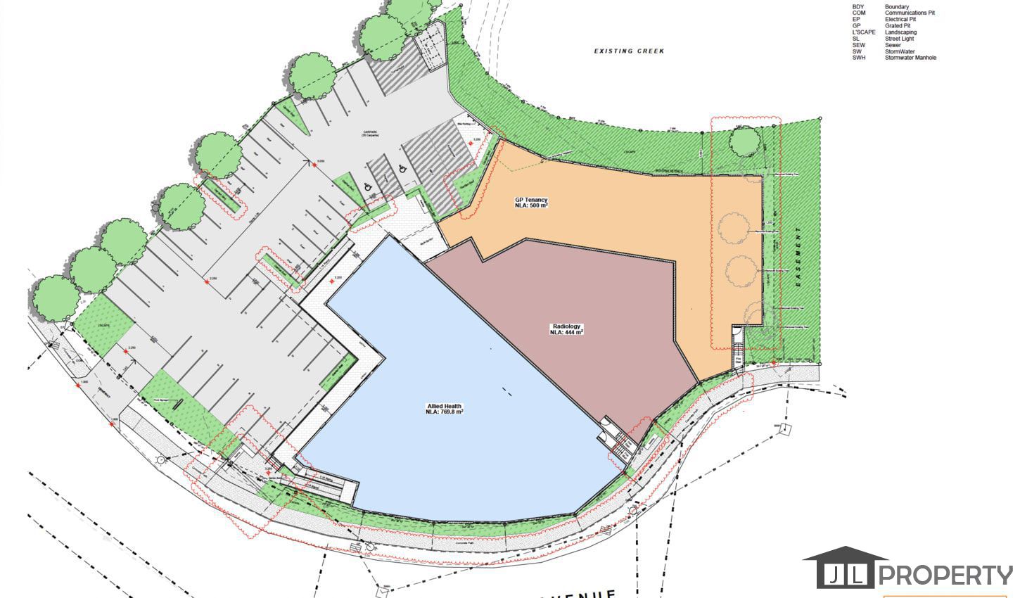
RWC Medical is excited to present an exceptional opportunity for healthcare professionals at 6 Fortune Avenue, Bongaree. This modern medical complex, with an expected completion in mid-2024, offers a range of flexible tenancy options suitable for a variety of medical services.
Tenancy Options:
• Options for tenancies ranging from 100 to 770 sqm
• Adaptable to other sizes upon request
Facility Highlights:
• Cold shell spaces allowing customisation for specific medical practice requirements
• Approximately 50 parking spaces available for staff and patients
• Pre-committed GP and Radiology clinic ensuring a steady flow of healthcare traffic

Updated at 28 May 2024 by Franz Stapelberg

Loading...

Last 7 Days Visitor & Contact Data

Related Properties

JordlingHome Guest Post
© 2023 by JordlingHome | Page loaded in: 0.036 sec