thumbnail-87-power-street-st-albans-vic-3021-0
thumbnail-87-power-street-st-albans-vic-3021-1
thumbnail-87-power-street-st-albans-vic-3021-2
thumbnail-87-power-street-st-albans-vic-3021-3
thumbnail-87-power-street-st-albans-vic-3021-4

87 Power Street, St Albans VIC 3021

house For Sale $ 840,000
Specification

Surface Area 785 M2
Building Area 628 M2
Bedroom 3
Bathroom 2

Prime Development Opportunity in St Albans: Approved Plans & Permits for Four Stylish Townhouses with Private Yards
Nestled in the highly sought-after locale of St Albans, this property stands as a prime choice for families and young professionals alike. The area's popularity stems from its strategic location, offering seamless access to major transportation routes, top-tier schools, and an array of amenities that cater to diverse lifestyles. Residents keen on public transport will appreciate the close proximity to the St Albans train station, ensuring effortless commuting to Melbourne's bustling central business district.
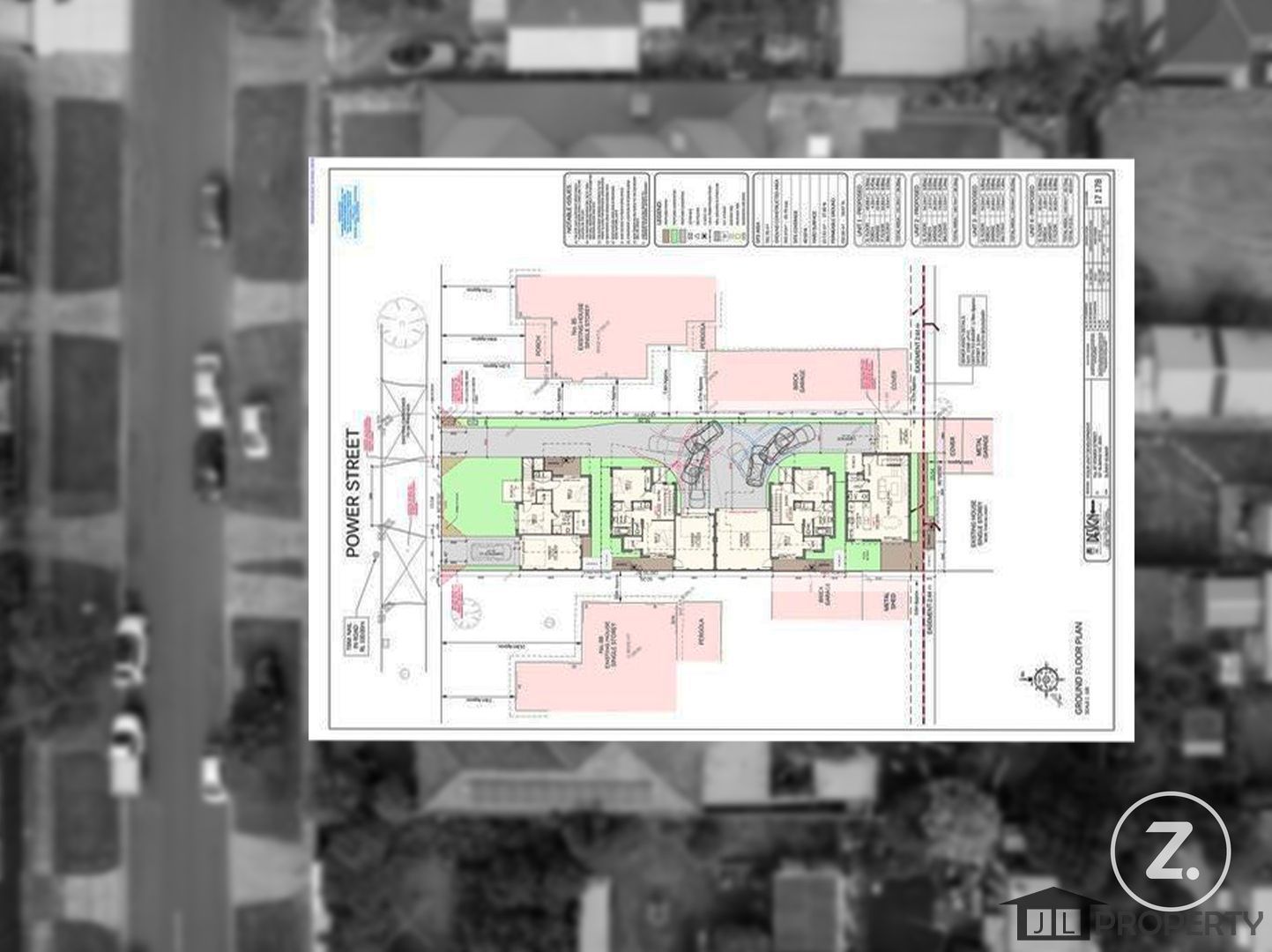
For those with a penchant for development, a golden opportunity awaits. The property comes with approved plans and permits for the construction of four townhouses, complete with comprehensive architectural, structural, civil, and all requisite documentation. This presents an ideal canvas for a visionary developer to turn dreams into reality and maximize profit potential.
Each townhouse within this envisioned development boasts its own distinctive style and character. The generously laid-out floor plans ensure ample living space, enhanced by high ceilings and expansive windows that invite an abundance of natural light into the homes. Whether one prefers modern finishes or embraces classic aesthetics, the possibilities for customization are truly endless.
A standout feature of this development site is its outdoor spaces. Each townhouse will enjoy the luxury of a private yard, providing an ideal setting for outdoor entertaining, gardening, or simply unwinding after a long day. The outdoor areas offer the opportunity to curate a welcoming atmosphere, with the possibility of amenities like fire pits, barbeque grills, and garden seating areas.
Currently leased at $1,470 per calendar month, the property presents not only a promising development prospect but also a steady income stream by attracting young families to enjoy sending their kids to top schools of Melbourne.
For those intrigued by the technical specifications of the townhouses, here are some key details:
Site Details: (Approximate Calculations)
Site Area: sqm
Ground Constructed Area: squares
Site Coverage:
Townhouse 1:
3 Bed / 2 Bath / 1 Car Garage / 1 Car Space
Land Size: sqm
Build Size: squares
Townhouse 2:
3 Bed / 2 Bath / 1 Car Garage / 1 Car Space
Land Size: sqm
Build Size: squares
Townhouse 3:
3 Bed / 2 Bath / 2 Car Garage
Land Size: sqm
Build Size: squares
Townhouse 4:
3 Bed / 2 Bath / 1 Carport/ 1 Car Space
Land Size: sqm
Build Size: squares

Updated at 5 April 2024 by Masudur Rahman

Loading...

Last 7 Days Visitor & Contact Data

Related Properties

JordlingHome Guest Post
© 2023 by JordlingHome | Page loaded in: 0.029 sec