Sub Properti
55 Indura Way, Werribee, Vic 3030
LOT 41043 Daybreak Vista, Craigieburn, Vic 3064
5 Crozier Crescent, Emerald, Qld 4720
Address available on request, Gleneagle, Qld 4285
9 Stockton Drive, Horsham, Vic 3400
50 Lake Russell Drive, Emerald Beach, NSW 2456
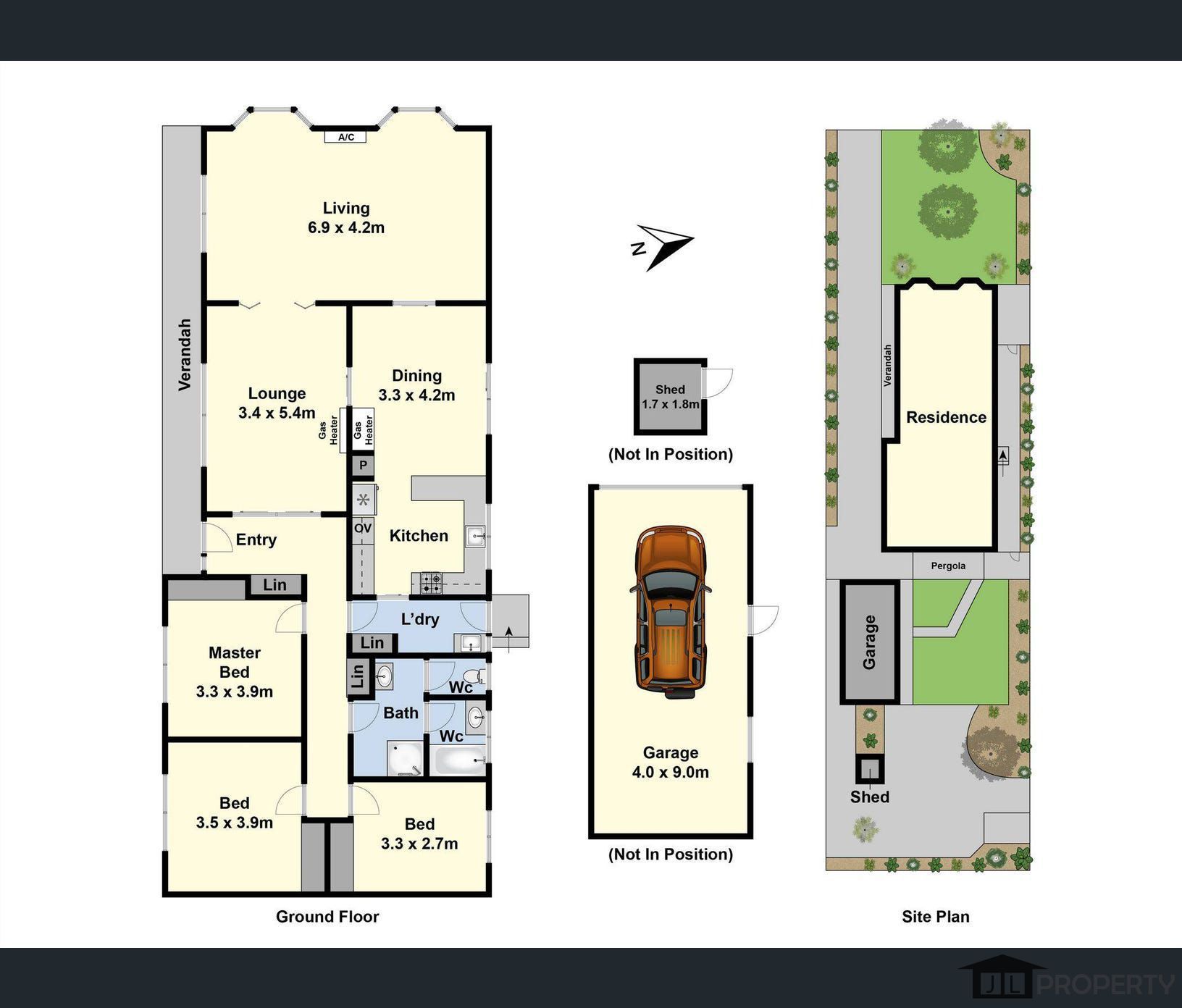
15 Theresa Street, Tullamarine, Vic 3043
11 Banksia Court, Morton Vale, Qld 4343
Address available on request, Oakville, NSW 2765
9 Rimbool Road, Grovedale, Vic 3216
Address available on request, Rostrevor, SA 5073
1/5 SPRING STREET, Wagga Wagga, NSW 2650
Showing 9277 to 9288 of 9780 results